Catherine McAuley Catholic College - Blocks I & J
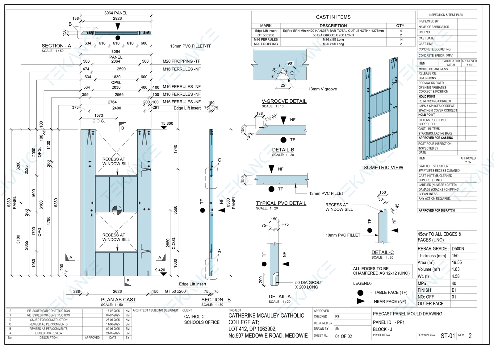
We delivered the full structural detailing package for the precast wall panels to Blocks I & J, enabling accurate off-site fabrication and a fast, safe installation on site.

Catherine McAuley Catholic College is a contemporary education campus defined by deep roof overhangs, warm screening and light-filled teaching spaces. Blocks I and J form part of a new multi-building campus designed around light-filled learning spaces, deep overhangs and warm timber screening.
Client
Catholic Schools Office, Diocese Maitland-Newcastle
Services
Precast Detailing
Date
July 2025
Location
NSW, Australia
Project Description
Catherine McAuley Catholic College is a contemporary education campus defined by deep roof overhangs, warm screening and light-filled teaching spaces.
Our scope covered structural detailing for the precast wall systems in Blocks I & J, coordinating with the concrete/steel structure, glazing and screening to maintain the architect’s rhythm and meet the project’s performance requirements.
Our detailing package provided clear, buildable documentation for the precast manufacturer and erection crews. Reducing RFIs, improving dimensional control and helping the builder maintain program in a live school environment.
The Scope Includes:
Translating contract and design documents into detailed shop drawings for each panel.
Modeling panels with accurate geometry, dimensions, reinforcement, embeds, and connections.
Preparing fabrication drawings including panel shapes, sizes, reinforcement, embedments, and finishing details.
Generating erection and assembly drawings showing panel locations, installation sequences, and connection details.
Including CNC files or machine data to automate production.
Creating bar bending schedules for reinforcement fabrication.
Providing marking plans, fixing lists, and hardware details to support efficient manufacturing and on-site installation.








